Attraktives Baugrundstück mit Baugenehmigung in Ariany - Mallorca

Eckdaten zur Immobilie

Objekt-ID
S2443
Objektart
Grundstück
Lage
07529 Ariany
Nutzfläche ca.
215,00 qm
Kaufpreis
350.000,00 €
Courtage
provisionsfrei

Weitere Angaben

Grundstücksfläche
414,00 qm
Bauweise
Massiv
Garten(mit-)nutzung
Ja
Energieausweis
Ja

Beschreibung

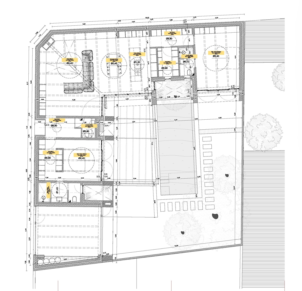
Zum Verkauf steht ein attraktives Baugrundstück mit einer Fläche von ca. 414 m² im ruhigen und authentischen Dorf Ariany im Herzen Mallorcas. Für das Grundstück liegt bereits eine Baugenehmigung für den Bau eines Einfamilienhauses mit Pool vor. Das genehmigte Projekt umfasst ein modernes Einfamilienhaus mit zwei Schlafzimmern und zwei Badezimmer sowie einem großzügig gestalteten Wohn- und Essbereich, der viel Raum für ein komfortables und entspanntes Wohnen bietet. Große Öffnungen zum Außenbereich schaffen eine helle und freundliche Wohnatmosphäre und verbinden Innen- und Außenleben auf harmonische Weise. Ein besonderes Highlight des Projekts ist der geplante Pool, der den zukünftigen Außenbereich zu einer privaten Wohlfühloase macht und ideal ist, um das mediterrane Klima Mallorcas in vollen Zügen zu genießen. Dieses Grundstück bietet somit eine hervorragende Gelegenheit, ein individuelles Eigenheim auf Mallorca zu verwirklichen – mit bereits genehmigtem Bauprojekt und idealer Grundstücksgröße.

Lage

In ruhiger, authentischer Lage von Ariany im Herzen von Mallorca befindet sich dieses Grundstück inmitten einer reizvollen, ländlich geprägten Umgebung. Das charmante Dorf besticht durch seine erhöhte Lage mit weiten Blicken über die mallorquinische Hügellandschaft bis hin zur Bucht von Alcúdia. Traditionelle Natursteinhäuser, kleine Gassen und eine gewachsene Dorfgemeinschaft verleihen Ariany seinen ursprünglichen Charakter. Die Umgebung ist geprägt von Feldern, Mandel- und Feigenbäumen sowie weitläufiger Natur – ideal für Ruhesuchende und Liebhaber des authentischen Insellebens. Gleichzeitig sind die Strände der Nordküste sowie die lebendige Inselhauptstadt Palma in angenehmer Fahrzeit erreichbar. Eine Lage, die Privatsphäre, Naturverbundenheit und echtes Mallorca-Flair harmonisch miteinander verbindet.

Kontakt

Laurenz Pogge

Tel. 00492093851267

ausland@vbim.de

Impressum

Bild Laurenz Pogge
Anschrift

Volksbank Immobilien

Rhein-Ruhr GmbH

Breddestr. 8

45894 Gelsenkirchen

Kontakt

info-@-vbim.de

Telefon +49 (0) 209 385 - 1284

Telefax +49 (0) 209 385 - 1288

Logo Volksbank Immobilien Rhein-Ruhr Volksbank Ruhr Mitte Logo Volksbank Rhein-Ruhr Logo VIV Volksbank Immobilien Verwaltung
Kontakt